物件詳細
物件名
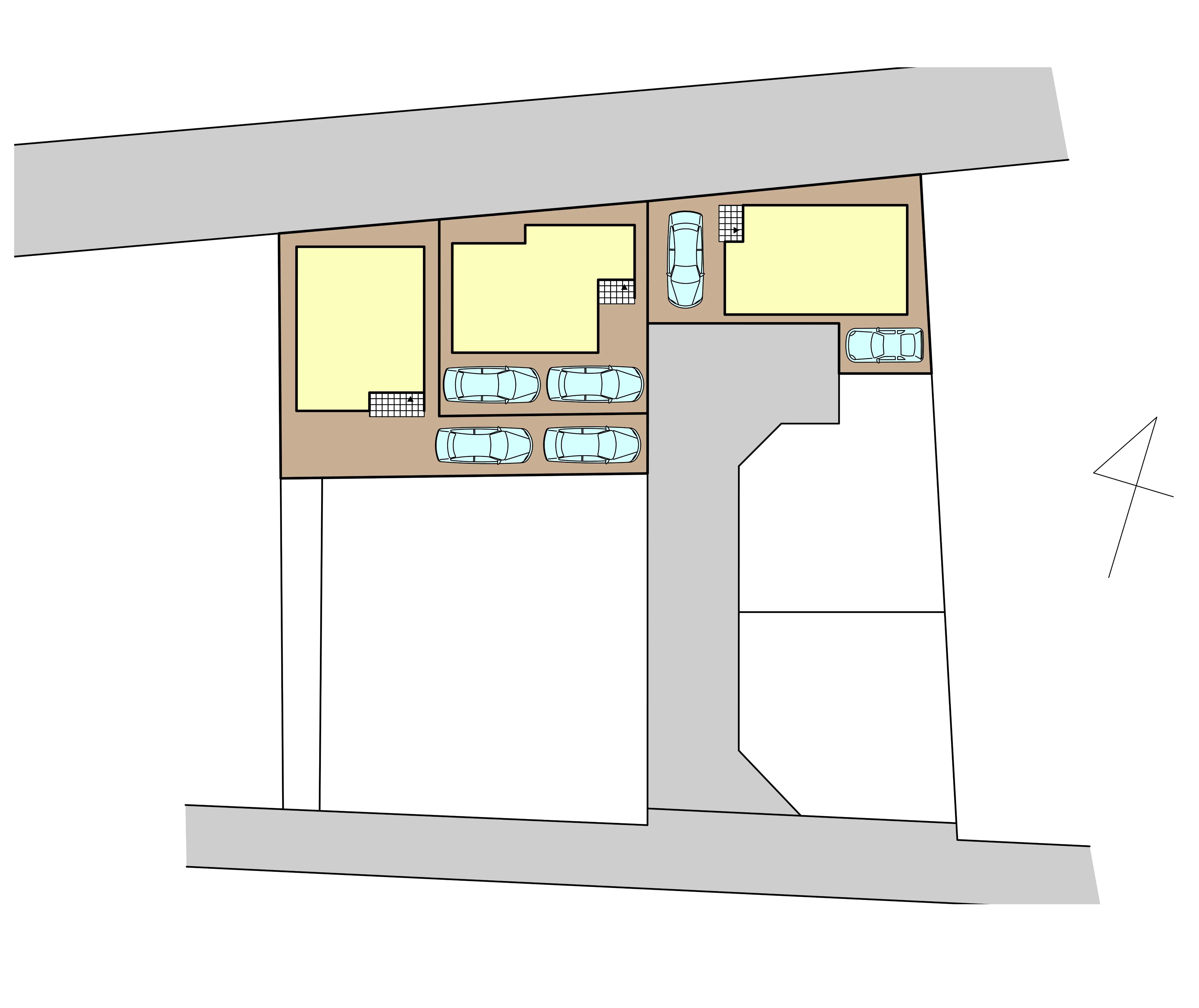
海老名市下今泉4丁目 新築デザイナーズハウスC号棟
所在地神奈川県海老名市下今泉4丁目
価格4,580万円
交通 徒歩18分
小田急小田原線 「海老名駅」 徒歩30分
小田急小田原線 「座間駅」 徒歩24分
小田急小田原線 「海老名駅」 徒歩30分
小田急小田原線 「座間駅」 徒歩24分
物件種別新築戸建
間取り4LDK
階数2階建
建物面積 98.53m2 (29.81坪)
駐車場有
土地面積 105.11m2 (31.80坪)
構造木造
現況未完成
設備 /
ライフライン公営水道
ライフライン公営水道
建蔽率60%
容積率200%
土地権利-
引き渡し時期相談
取引態様仲介
接道状況南東5m
都市計画市街化区域
用途地域第一種住居地域
築年月2026年3月
地目宅地
建物確認番号第2025確認建築静建住ま06117号
学区今泉小学校
今泉中学校
今泉中学校
情報更新日2025年12月25日
備考公法制限/準防火地域、都市再生特別措置法、水防法
設備・条件
キッチンカウンターキッチン / 食器洗浄機
バス・トイレ浴室乾燥機
室内設備ウォークインクローゼット / リビング階段 / 吹抜け
建物設備日当たり良好
その他閑静な住宅街 / スーパー徒歩10分以内
こだわり条件
駐車2台以上
対面キッチン
浴室乾燥機
デザイナーズ
スーパーなど生活施設が近隣に揃い、住環境の整った「海老名市下今泉4丁目」。そんなエリアの開発分譲地内にて、長期優良住宅仕様のデザイナーズハウスが販売開始です!!《C号棟》
0120-046-234
※電話でお問い合わせの際は、「物件番号: 10027237」をお伝えください。


























