物件詳細
物件名
藤沢市長後2期 新築分譲住宅 全1棟
所在地神奈川県藤沢市長後
価格5,499万円
交通小田急江ノ島線 「長後駅」 徒歩7分
物件種別新築戸建
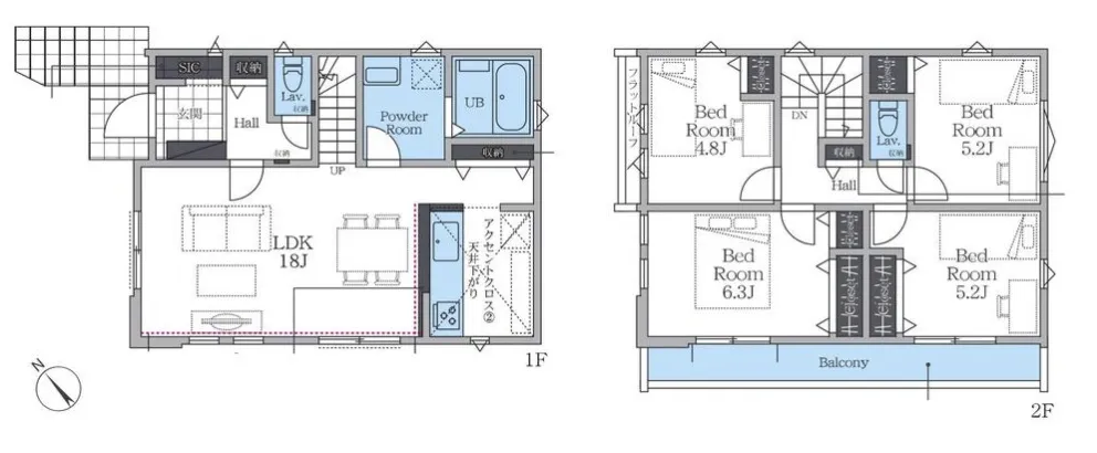
間取り4LDK
階数4階建
建物面積 96.08m2 (29.06坪)
駐車場有
土地面積 122.01m2 (36.91坪)
構造木造
現況未完成
設備 /
ライフライン公営水道 / 本下水 / 都市ガス
ライフライン公営水道 / 本下水 / 都市ガス
建蔽率50%
容積率80%
土地権利所有権
引き渡し時期相談
取引態様仲介
接道状況北西3.08m公道
都市計画市街化区域
用途地域第一種低層住居専用地域
築年月2026年1月
地目畑
建物確認番号第25UDI1W建06403号
学区富士見台小学校
長後中学校
長後中学校
情報更新日2025年12月25日
備考法第22条区域 下水道処理区域 日影規制3-2-h/1.5m 絶対高さ制限10m
宅地造成等工事規制区域 建築確認申請面積:121.45平米
(北東側隣地のCB一部越境の為約0.56平米除外して申請)
道路幅員/セットバック後約4.0m(市に移管予定)
地目/畑(引渡しまでに宅地へ変更)
宅地造成等工事規制区域 建築確認申請面積:121.45平米
(北東側隣地のCB一部越境の為約0.56平米除外して申請)
道路幅員/セットバック後約4.0m(市に移管予定)
地目/畑(引渡しまでに宅地へ変更)
設備・条件
キッチンカウンターキッチン / 食器洗浄機
バス・トイレ浴室乾燥機
室内設備シューズインクローク / パントリー / リビング階段
建物設備日当たり良好 / 南面バルコニー
その他整形地 / 閑静な住宅街 / 周辺交通量少なめ / スーパー徒歩10分以内 / 小学校徒歩10分以内
こだわり条件
駐車2台以上
対面キッチン
パントリー付き
浴室乾燥機
「長後」駅徒歩7分の好立地!リビングイン階段は家族とのコミュニケーションが取りやすいです♪2部屋か出入り出来るバルコニー◎
0120-58-6621
※電話でお問い合わせの際は、「物件番号: 10034995」をお伝えください。






