物件詳細
物件名
茅ヶ崎市浜須賀2期 新築分譲住宅 全4棟 No.4
所在地神奈川県茅ヶ崎市浜須賀
価格5,290万円
交通JR東海道本線 「辻堂駅」 バス10分 「平和町」 停歩5分
物件種別新築戸建
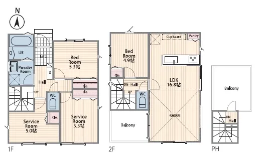
間取り2LDK+2S
階数2階建
建物面積 93.78m2 (28.37坪)
駐車場有
土地面積 110.00m2 (33.28坪)
構造木造
現況完成済
設備 /
ライフライン公営水道 / 本下水 / 都市ガス
ライフライン公営水道 / 本下水 / 都市ガス
建蔽率50%
容積率100%
土地権利所有権
引き渡し時期相談
取引態様仲介
接道状況北4.2m私道
都市計画市街化区域
用途地域第一種低層住居専用地域
築年月2025年11月
地目宅地
建物確認番号第25KAK建確01092号
学区緑が浜小学校
浜須賀中学校
浜須賀中学校
情報更新日2025年12月26日
備考準防火地域
設備・条件
キッチンカウンターキッチン
バス・トイレ浴室乾燥機
室内設備パントリー / 納戸
建物設備南面バルコニー
その他整形地 / 平坦地 / 閑静な住宅街 / スーパー徒歩10分以内 / 小学校徒歩10分以内
こだわり条件
対面キッチン
パントリー付き
浴室乾燥機
開放感溢れるルーフバルコニー付き☆各居室収納+パントリー完備で住空間スッキリ!買い物施設が近くお買い物便利です☆ <No.4>
0120-58-6621
※電話でお問い合わせの際は、「物件番号: 10033364」をお伝えください。




























