物件詳細
物件名
茅ヶ崎市浜須賀 新築分譲住宅 販売8棟 2号棟
所在地神奈川県茅ヶ崎市浜須賀
価格5,980万円
交通JR東海道本線 「辻堂駅」 徒歩35分
JR東海道本線 「辻堂駅」 バス7分 「平和学園前」 停歩5分
JR東海道本線 「辻堂駅」 バス7分 「平和学園前」 停歩5分
物件種別新築戸建
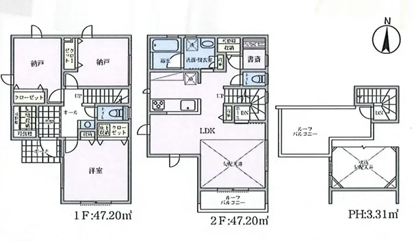
間取り1LDK+2S
階数2階建
建物面積 97.71m2 (29.56坪)
駐車場有
土地面積 100.91m2 (30.53坪)
構造木造
現況未完成
設備 /
ライフライン公営水道 / 本下水 / 都市ガス
ライフライン公営水道 / 本下水 / 都市ガス
建蔽率50%
容積率100%
土地権利所有権
引き渡し時期相談
取引態様仲介
接道状況南4.2mに7.82m面す
都市計画市街化区域
用途地域第一種低層住居専用地域
地目宅地
建物確認番号第2025SBC-確00762H号
学区緑が浜小学校
浜須賀中学校
浜須賀中学校
情報更新日2025年12月25日
備考準防火地域、日影規制3時間・2時間 測定高さ1.5m、最高高さ10m、最低敷地面積100㎡、宅地造成等工事規制区域
設備・条件
キッチンカウンターキッチン
バス・トイレ浴室乾燥機
室内設備シューズインクローク / リビング階段 / 納戸
建物設備日当たり良好 / 南面バルコニー
その他整形地 / 閑静な住宅街 / スーパー徒歩10分以内 / 小学校徒歩10分以内
こだわり条件
対面キッチン
浴室乾燥機
南側道路につき日当たり良好です!開放感溢れるルーフバルコニー付き☆スーパー徒歩10分圏内。買い物便利です。 <2号棟>
0120-58-6621
※電話でお問い合わせの際は、「物件番号: 10021900」をお伝えください。







