物件詳細
物件名
茅ヶ崎市甘沼 新築分譲住宅 全1棟 1号棟
所在地神奈川県茅ヶ崎市甘沼
価格4,080万円
交通JR相模線 「香川駅」 徒歩18分
物件種別新築戸建
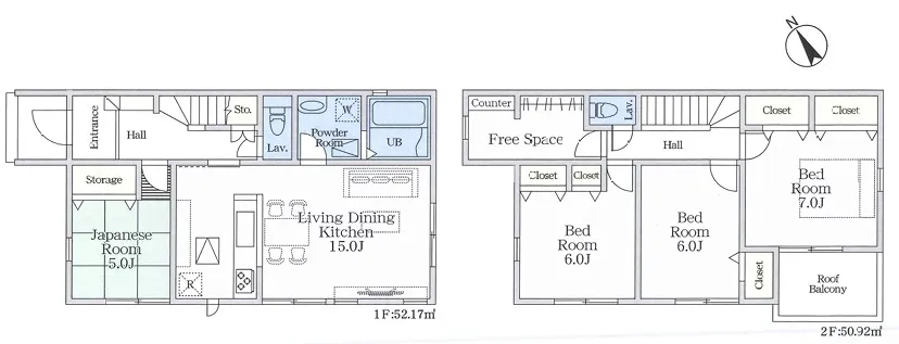
間取り4LDK
階数2階建
建物面積 103.09m2 (31.18坪)
駐車場有
土地面積 126.98m2 (38.41坪)
私道負担有り
構造木造
現況未完成
設備 /
ライフライン公営水道 / 本下水 / 都市ガス
ライフライン公営水道 / 本下水 / 都市ガス
建蔽率60%
容積率200%
土地権利所有権
引き渡し時期期日指定 2025年10月中旬
取引態様仲介
接道状況南西4m公道に14.01m面す
北西4.2m私道に5.18m面す
北西4.2m私道に5.18m面す
都市計画市街化区域
用途地域第一種中高層住居専用地域
築年月2025年10月
地目宅地
建物確認番号第KS125-3820-50184号
学区香川小学校
鶴が台中学校
鶴が台中学校
情報更新日2025年12月25日
備考公法制限/高度地区:第2種、防火地域:準防火地域
設備・条件
キッチンカウンターキッチン / 食器洗浄機
バス・トイレ浴室乾燥機
室内設備
建物設備日当たり良好 / 南面バルコニー
その他整形地 / 長期優良住宅認定通知書 / 閑静な住宅街 / 小学校徒歩10分以内
こだわり条件
角地
駐車2台以上
対面キッチン
浴室乾燥機
全居室南向きの南西角地!日当たり・開放感良好です♪荷物の受け取りに便利な宅配ボックス完備☆
0120-58-6621
※電話でお問い合わせの際は、「物件番号: 10021119」をお伝えください。





























