物件詳細
物件名
Besel湘南藤沢 新築分譲住宅 全6棟 6号棟
所在地神奈川県藤沢市並木台1丁目
価格6,490万円
交通JR東海道本線 「大船駅」 バス13分 「渡内」 停歩2分
JR東海道本線 「藤沢駅」 バス14分 「渡内」 停歩2分
小田急江ノ島線 「藤沢駅」 バス14分 「渡内」 停歩2分
江ノ島電鉄 「藤沢駅」 バス14分 「渡内」 停歩2分
JR東海道本線 「藤沢駅」 バス14分 「渡内」 停歩2分
小田急江ノ島線 「藤沢駅」 バス14分 「渡内」 停歩2分
江ノ島電鉄 「藤沢駅」 バス14分 「渡内」 停歩2分
物件種別新築戸建
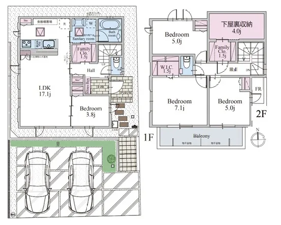
間取り4LDK
階数2階建
建物面積 99.45m2 (30.08坪)
駐車場有
土地面積 135.93m2 (41.12坪)
構造木造
現況完成済
設備 /
ライフライン公営水道 / 本下水 / 都市ガス
ライフライン公営水道 / 本下水 / 都市ガス
建蔽率50%
容積率80%
土地権利所有権
引き渡し時期相談
取引態様仲介
接道状況南6m
都市計画市街化区域
用途地域第一種低層住居専用地域
築年月2025年5月
地目宅地
建物確認番号第KBI-SGM24-10-2485号
学区高谷小学校
藤ヶ岡中学校
藤ヶ岡中学校
情報更新日2025年12月25日
設備・条件
キッチンカウンターキッチン / 食器洗浄機
バス・トイレ浴室乾燥機
室内設備ウォークインクローゼット
建物設備日当たり良好 / 南面バルコニー
その他整形地 / 閑静な住宅街 / スーパー徒歩10分以内
こだわり条件
駐車2台以上
対面キッチン
浴室乾燥機
南側道路につき日当たり良好です♪スーパーやドラッグストアが徒歩10分圏内!買い物に便利な立地☆ <6号棟>
0120-58-6621
※電話でお問い合わせの際は、「物件番号: 10020384」をお伝えください。











