物件詳細
物件名
平塚市龍城ケ丘 新築分譲住宅 全3棟 1号棟
所在地神奈川県平塚市龍城ケ丘
価格4,380万円
交通JR東海道本線 「平塚駅」 徒歩15分
物件種別新築戸建
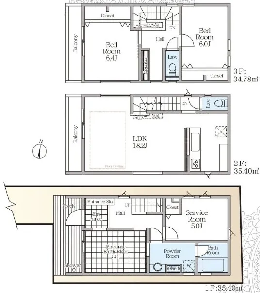
間取り2LDK+S
階数3階建
建物面積 105.58m2 (31.94坪)
駐車場有
土地面積 94.00m2 (28.44坪)
構造木造
現況完成済
設備 /
ライフライン公営水道 / 本下水 / 都市ガス
ライフライン公営水道 / 本下水 / 都市ガス
建蔽率60%
容積率200%
土地権利所有権
引き渡し時期期日指定 2025年7月下旬
取引態様仲介
接道状況西7.5m公道
都市計画市街化区域
用途地域第一種中高層住居専用地域
築年月2025年7月
地目宅地
建物確認番号第2023SBC-確02653Y号
学区花水小学校
浜岳中学校
浜岳中学校
情報更新日2025年12月25日
備考準防火地域、第2種高度地区
設備・条件
キッチンカウンターキッチン / 食器洗浄機
バス・トイレ浴室乾燥機
室内設備リビング階段 / 納戸
建物設備
その他平坦地 / 閑静な住宅街 / スーパー徒歩10分以内 / 小学校徒歩10分以内
こだわり条件
対面キッチン
浴室乾燥機
家族の絆が深まるリビングイン階段!学校が近くお子様の通学も安心♪駅まで徒歩15分の立地☆ <1号棟>
0120-58-6621
※電話でお問い合わせの際は、「物件番号: 10014244」をお伝えください。

























