物件詳細
物件名
藤沢市鵠沼神明3丁目 新築分譲住宅 全7邸 No.3
所在地神奈川県藤沢市鵠沼 神明3丁目
価格4,980万円
交通小田急江ノ島線 「藤沢本町駅」 徒歩17分
JR東海道本線 「藤沢駅」 徒歩24分
小田急江ノ島線 「藤沢駅」 徒歩24分
江ノ島電鉄 「藤沢駅」 徒歩24分
JR東海道本線 「藤沢駅」 徒歩24分
小田急江ノ島線 「藤沢駅」 徒歩24分
江ノ島電鉄 「藤沢駅」 徒歩24分
物件種別新築戸建
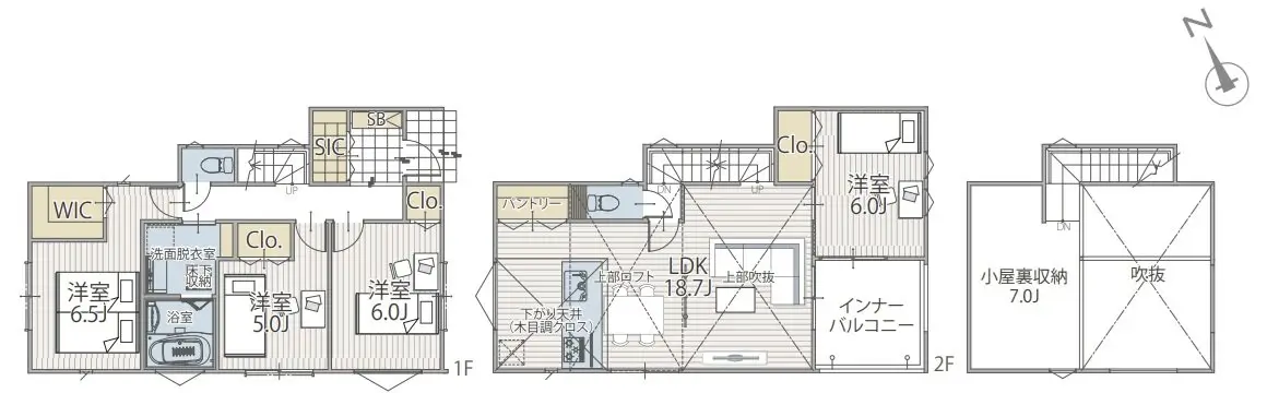
間取り4LDK
階数2階建
建物面積 104.96m2 (31.75坪)
駐車場有
土地面積 102.81m2 (31.10坪)
構造木造
現況完成済
設備 /
ライフライン公営水道 / 本下水 / 都市ガス
ライフライン公営水道 / 本下水 / 都市ガス
建蔽率60%
容積率200%
土地権利所有権
引き渡し時期相談
取引態様仲介
接道状況南西4.5m公道
都市計画市街化区域
用途地域第一種住居地域
築年月2025年9月
地目宅地
建物確認番号第24KAK建確03949号
学区鵠沼小学校
第一中学校
第一中学校
情報更新日2025年12月25日
備考準防火地域
設備・条件
キッチンカウンターキッチン
バス・トイレ浴室乾燥機
室内設備ウォークインクローゼット / シューズインクローク / パントリー / 吹抜け
建物設備南面バルコニー
その他整形地 / スーパー徒歩10分以内 / 小学校徒歩10分以内
こだわり条件
駐車2台以上
対面キッチン
パントリー付き
浴室乾燥機
至近に大型商業施設が複数あり買い物環境が充実!「あったら嬉しい」が詰まった充実設備の新築戸建です♪ <No.3>
0120-58-6621
※電話でお問い合わせの際は、「物件番号: 10007161」をお伝えください。























