物件詳細
物件名
マイキャッスル湘南辻堂
所在地神奈川県茅ヶ崎市小和田2丁目
価格5,599万円
交通JR東海道本線 「辻堂駅」 徒歩14分
物件種別中古マンション
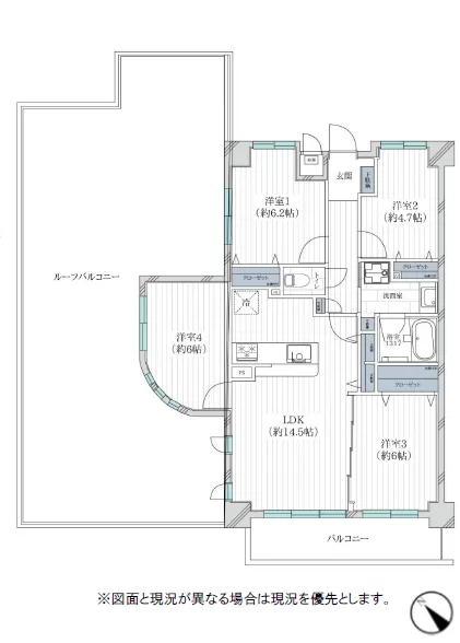
間取り4LDK
階数6階建
所在階5階
専有面積 78.87m2 (23.86坪)
駐車場有
構造鉄筋コンクリート
現況空家
修繕積立金17,040円/月
管理費11,800円/月
管理方式全部委託
土地権利所有権
引き渡し時期即時
取引態様仲介
築年月1997年7月
学区小和田小学校
赤羽根中学校
赤羽根中学校
情報更新日2025年12月27日
備考駐車場:月額7.000~12.000円
駐輪場:1台目無償、2台目以降300円/月
バイク置場:月額800~1.000円
ルーフバルコニー使用料:月額2.200円
駐輪場:1台目無償、2台目以降300円/月
バイク置場:月額800~1.000円
ルーフバルコニー使用料:月額2.200円
設備・条件
キッチンカウンターキッチン / 食器洗浄機
バス・トイレ浴室乾燥機
室内設備
建物設備駐輪場 / バイク置き場 / エレベーター / 日当たり良好
セキュリティオートロック
入居条件
その他角部屋 / スーパー徒歩10分以内 / 小学校徒歩10分以内
こだわり条件
眺望良好
対面キッチン
オートロック
浴室乾燥機
リフォーム済
高層階
73㎡超の開放的なルーフバルコニーから富士山を望めます!新規フルリノベーション済みで綺麗な室内の4LDK◎
0120-58-6621
※電話でお問い合わせの際は、「物件番号: 10038053」をお伝えください。










